Váš nákupný košík je prázdny

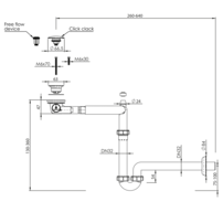
URBINO Umyvadlový sifon šetřící místo, Clickklack výpustí , 1'1/4, odpad 32 mm, bílá

URBINO Umyvadlový sifon šetřící místo, Clickklack výpustí , 1'1/4, odpad 32 mm, bílá

Kód: 151.133.0
Značka: Bruckner
Dostupnosť: Dodanie od 2 do 12 dní
30,00 €
(24,39 € bez DPH )  
ks

Nákup na splátky

ahoj na splátky cez Quatro kalkulačka

Opýtajte sa na tento produkt

Vlastnosti

ZnačkaBRUCKNER
FarbaBiela
MateriálPlast
Priemer odpadu32 mm
Veľkosť závitu5/4"
Hrúbka umývadla4-65 mm
VýbavaŠetriace miesto, S výpusťou
Hmotnosť / ks0.4460 kg
EAN8590913907876
Taric39174000
Záruka2 roky

Šetriaci miesto

Ide o systém, kde rúrka pod umývadlom odvedie vodu k stene a až tam ju odvádza zvisle dole. Toto riešenie je vhodné napríklad do kúpeľňového nábytku, kedy sifón nebráni využitiu police/zásuvky, pre umývadlá s policou alebo k umývadlám pre telesne handicapovaných.

Technické parametre

Váha 0.446
Hrúbka umývadla 4-65
Farba Biela
Balenie 0
Výbava Šetriace miesto;Do nábytku;S výpustí
Veľkosť závitu 5/4"
Materiál Plast
Záruka 2 roky
Priemer odpadu 32

Produktový list

produktový list (formát PDF)

Prílohy